8916 SW CHOKECHERRY LNTualatin, OR 97062
Due to the health concerns created by Coronavirus we are offering personal 1-1 online video walkthough tours where possible.




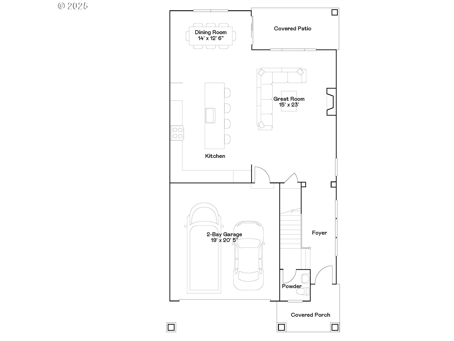
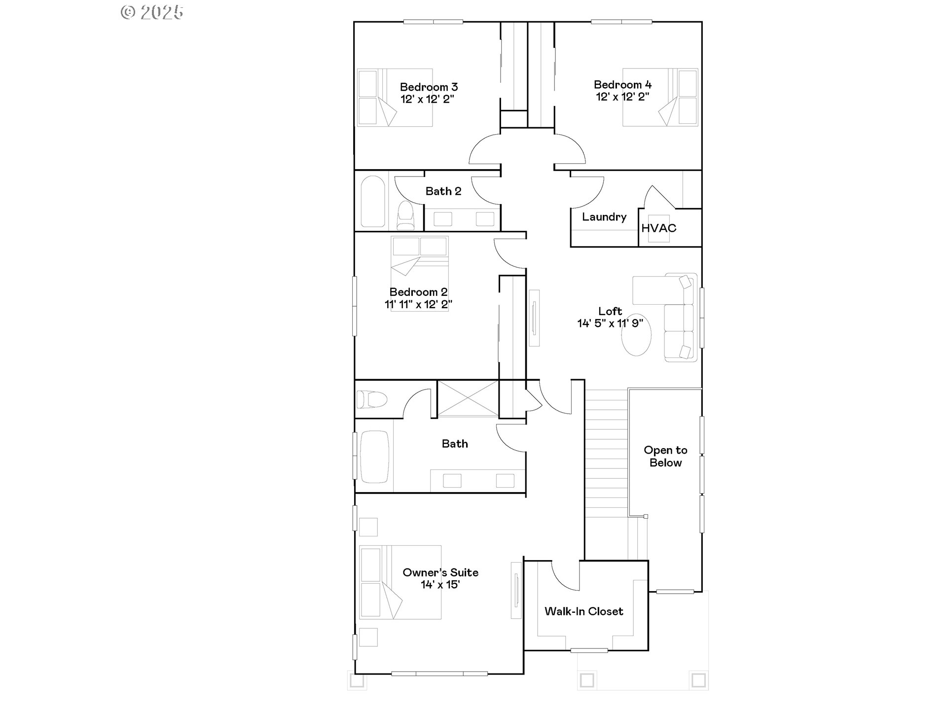
Discover this beautiful new construction home in the Autumn Sunrise community, ideally situated near I-5 with convenient access to shopping and dining. Residents in this community enjoy inviting neighborhood amenities including a playground, fire pit, pickleball and basketball court — designed for fun and easy get-togethers. The Magnolia plan features an open concept main floor with a great room, kitchen, and dining room that connect to a covered patio. Upstairs, a loft provides flexibility along with four bedrooms, including a primary suite with an ensuite bath and walk-in closet. Interior highlights include quartz countertops, shaker-style cabinets, carpet in all bedrooms, a fireplace with floating mantle, two-tone paint, and other luxury details. This home also includes front & back yard irrigation, fencing, and central air conditioning, plus a refrigerator, washer and dryer, and blinds — all included at no extra cost! Located on homesite 342, this home is expected to be complete in Summer 2026. Rendering is artist conception only. Photos are of a similar home, features and finishes will vary.
| yesterday | Listing updated with changes from the MLS® | |
| yesterday | Listing first seen on site |
The content relating to real estate for sale on this website comes in part from the IDX program of the RMLS™ of Portland, Oregon. Real estate listings held by brokerage firms other than are marked with the RMLS™ logo, and detailed information about these properties includes the names of the listing brokers. Listing content is Copyright © 2026 RMLS™, Portland, Oregon. Some properties which appear for sale on this website may subsequently have sold or may no longer be available.
Last checked 2026-02-24 02:21 PM PST.
All information provided is deemed reliable but is not guaranteed and should be independently verified


Did you know? You can invite friends and family to your search. They can join your search, rate and discuss listings with you.