31740 NW BLAKE TERNorth Plains, OR 97133
Due to the health concerns created by Coronavirus we are offering personal 1-1 online video walkthough tours where possible.




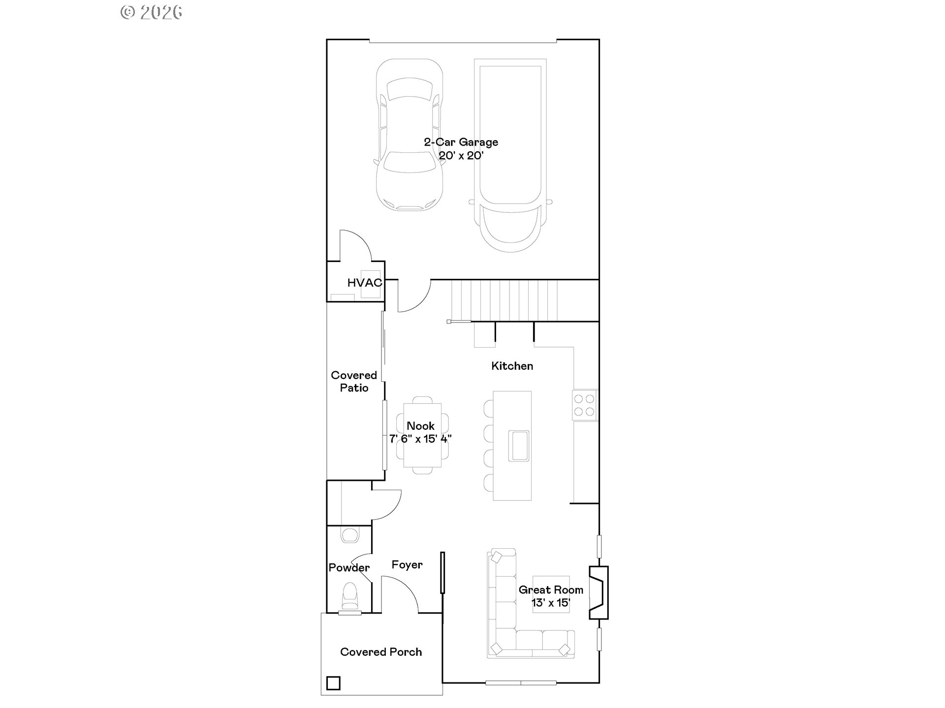
Welcome to the Brynhill community and the Chambrey floorplan sitting on a corner lot in beautiful North Plains. Multitasking and entertaining is made simple in this two-story 3 bedroom, 2.5 bath single-family home. An open floorplan is shared between the great room, kitchen and nook on the first level of the home. Sliding glass doors behind the nook lead to the outdoor space. All three bedrooms are located upstairs, including the primary suite with an en-suite bath featuring double vanities with separate bath and shower plus a spacious walk-in closet. The two secondary bedrooms share a convenient Jack-and-Jill style bathroom in between them. Interior highlights include quartz countertops, shaker-style cabinets, LVP flooring in kitchen/entry way, LVT flooring in baths, a cozy fireplace in the great room and much more. This home also includes central air conditioning, a refrigerator, washer and dryer, and blinds—all at no extra cost! This brand new community is loaded with amenities including multiple onsite parks featuring pickleball, basketball, a putting green, a cornhole area, playgrounds, and picnic areas. Move in ready! Homesite 430. Photos are of similar model home - cabinet color and exterior may vary, but counter tops & flooring are as shown. Incentives available with use of our preferred lender.
| 22 hours ago | Listing updated with changes from the MLS® | |
| 22 hours ago | Listing first seen on site |
The content relating to real estate for sale on this website comes in part from the IDX program of the RMLS™ of Portland, Oregon. Real estate listings held by brokerage firms other than are marked with the RMLS™ logo, and detailed information about these properties includes the names of the listing brokers. Listing content is Copyright © 2026 RMLS™, Portland, Oregon. Some properties which appear for sale on this website may subsequently have sold or may no longer be available.
Last checked 2026-03-17 12:43 PM PDT.
All information provided is deemed reliable but is not guaranteed and should be independently verified

