16852 SW Yarra LNTigard, OR 97224
Due to the health concerns created by Coronavirus we are offering personal 1-1 online video walkthough tours where possible.




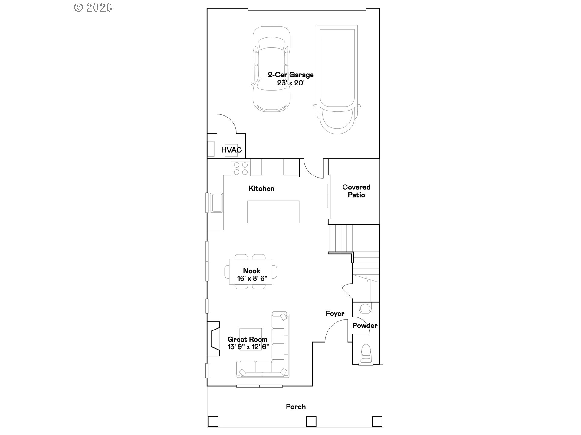
This new construction two-story home is located in a planned community with multiple parks, close to schools, shopping, dining, and freeway access. The main floor features an open concept design connecting the kitchen, living and dining areas, with a cozy fireplace in the great room creating a warm focal point. Upstairs, the Clark plan features 4 bedrooms, including a primary suite with an en-suite bathroom featuring a double vanity and walk-in closet. Interior highlights include quartz countertops, shaker-style cabinets, LVP (luxury vinyl plank) flooring in the entry, kitchen and Great Room, with LVT (luxury vinyl tile) flooring in the bathrooms. This home also includes central air conditioning, a refrigerator, washer and dryer, and blinds—all at no extra cost. Photos are of a similar home, but cabinet colors, counter tops & flooring are as shown. Homesite 142. Estimated completion: Summer 2026.
| 2 days ago | Listing updated with changes from the MLS® | |
| 2 days ago | Listing first seen on site |
The content relating to real estate for sale on this website comes in part from the IDX program of the RMLS™ of Portland, Oregon. Real estate listings held by brokerage firms other than are marked with the RMLS™ logo, and detailed information about these properties includes the names of the listing brokers. Listing content is Copyright © 2026 RMLS™, Portland, Oregon. Some properties which appear for sale on this website may subsequently have sold or may no longer be available.
Last checked 2026-03-19 01:58 AM PDT.
All information provided is deemed reliable but is not guaranteed and should be independently verified

