70 NW BIRDSDALE AVEGresham, OR 97030
Due to the health concerns created by Coronavirus we are offering personal 1-1 online video walkthough tours where possible.




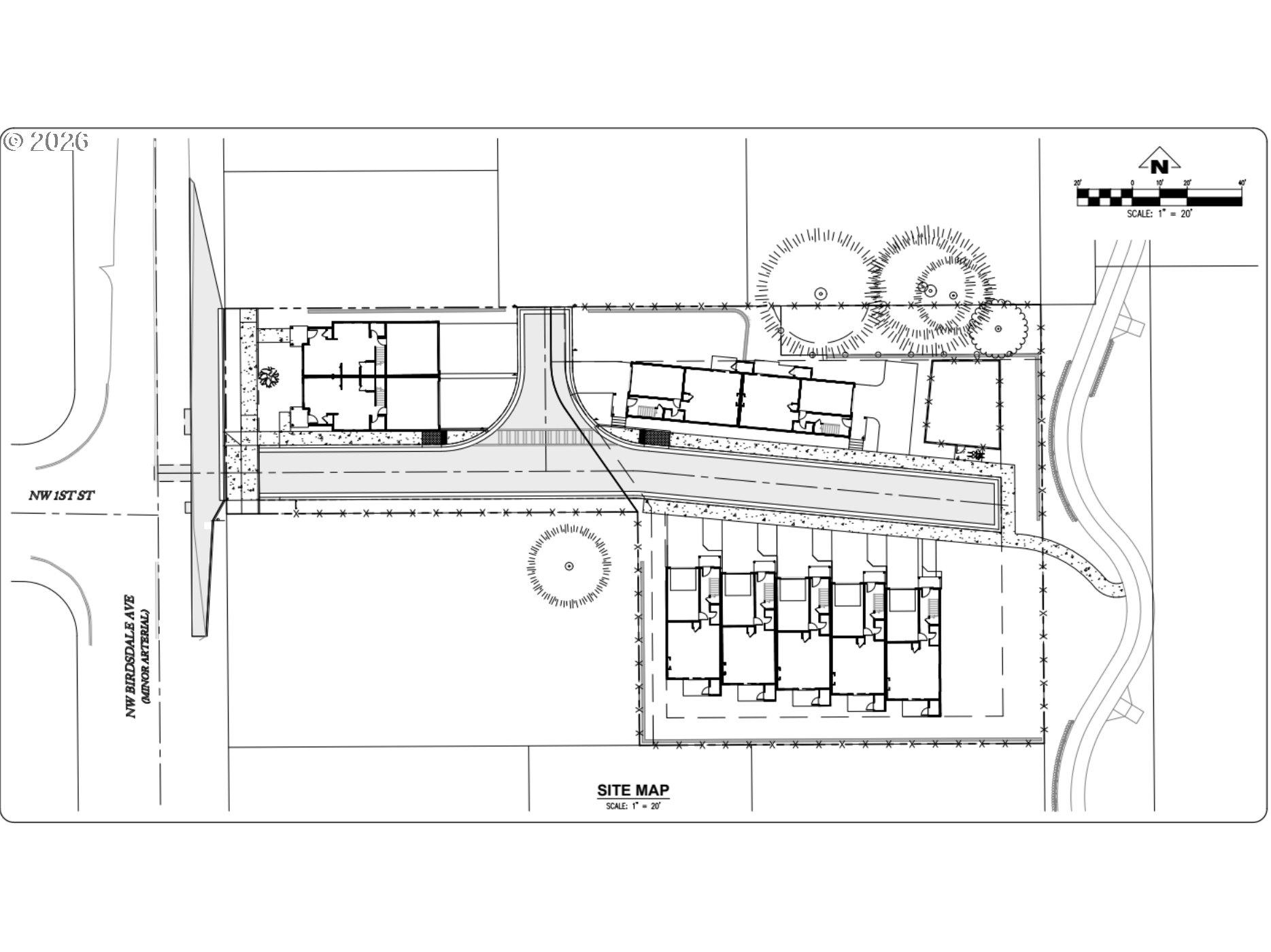
Permit-ready 9-unit townhome development site in Gresham — city only requires permit fees to begin construction. Fully entitled with approved architectural, civil engineering, and landscape plans. Two tax lots totaling 0.78 acres zoned CMU (Corridor Mixed Use), approved for two duplexes and one fiveplex. All nine units designed as 3-bedroom, 2.5-bath two-story townhomes averaging approximately 1,400 SF each (~12,600 SF total livable). Each unit includes a private garage with driveway parking. Site plan includes private driveways, children's play area, stormwater management, bike parking, and landscaped buffers. Flat, cleared lot with all utilities available at the street including public water, sewer, natural gas, and electricity. No existing structures. Located south of Powell Blvd near NW Civic Dr with easy access to MAX light rail, Gresham Station shopping, and Highway 26. Strong rental demand in the Gresham market makes this an ideal build-to-rent or build-to-sell opportunity. Complete entitlement package transfers with sale including civil drawings, architectural plans, and landscape permit set. Buyer selects general contractor and interior finishes. Seller is a licensed Oregon real estate broker with ownership interest in the property.
| 20 hours ago | Listing updated with changes from the MLS® | |
| yesterday | Listing first seen on site |
The content relating to real estate for sale on this website comes in part from the IDX program of the RMLS™ of Portland, Oregon. Real estate listings held by brokerage firms other than Kelly Right Real Estate of Portland, LLC are marked with the RMLS™ logo, and detailed information about these properties includes the names of the listing brokers. Listing content is Copyright © 2026 RMLS™, Portland, Oregon. Some properties which appear for sale on this website may subsequently have sold or may no longer be available.
Last checked 2026-03-25 01:12 PM PDT.
All information provided is deemed reliable but is not guaranteed and should be independently verified

